
Simple Shipping Container Home Plans- Delightful for you to my personal blog, on this moment I will demonstrate regarding simple shipping container home plans. And today, this is the very first graphic:

shipping container home floor plans 17 photos from simple shipping container home plans
Choosing A House Plan
Building a house of your own substitute is the determination of many people, but in the manner of they get the opportunity and financial means to accomplish so, they torment yourself to get the right home scheme that would transform their get-up-and-go into reality. It is a long and complicated route from the first conceptualization of a house to the home designs, floor plans, elevations, cross-sections, structural designs, and finally the completed home scheme that will ultimately form the basis of the construction of the home. Most people realize not have a clue as to where and how to get house designs, or even to get the right designers who can get this job for them.
How to locate the Best home Plans
The best bet for finding the right home plans is to browse the swing websites providing house plans and pick the most reputable one. later than you visit their site, you will find a plethora of home scheme designs afterward pictorial representation of the homes, complete behind floor plans, cross-sections, and elevations consequently that you can acquire a positive idea of what the home will look like. later than you see at a number of these, you will get great ideas that you can fine-tune to warfare your own requirements. The website will as well as offer a coarse idea of the cost working in building a home as per a particular house design.

prefab shipping container homes plans prefab homes from simple shipping container home plans
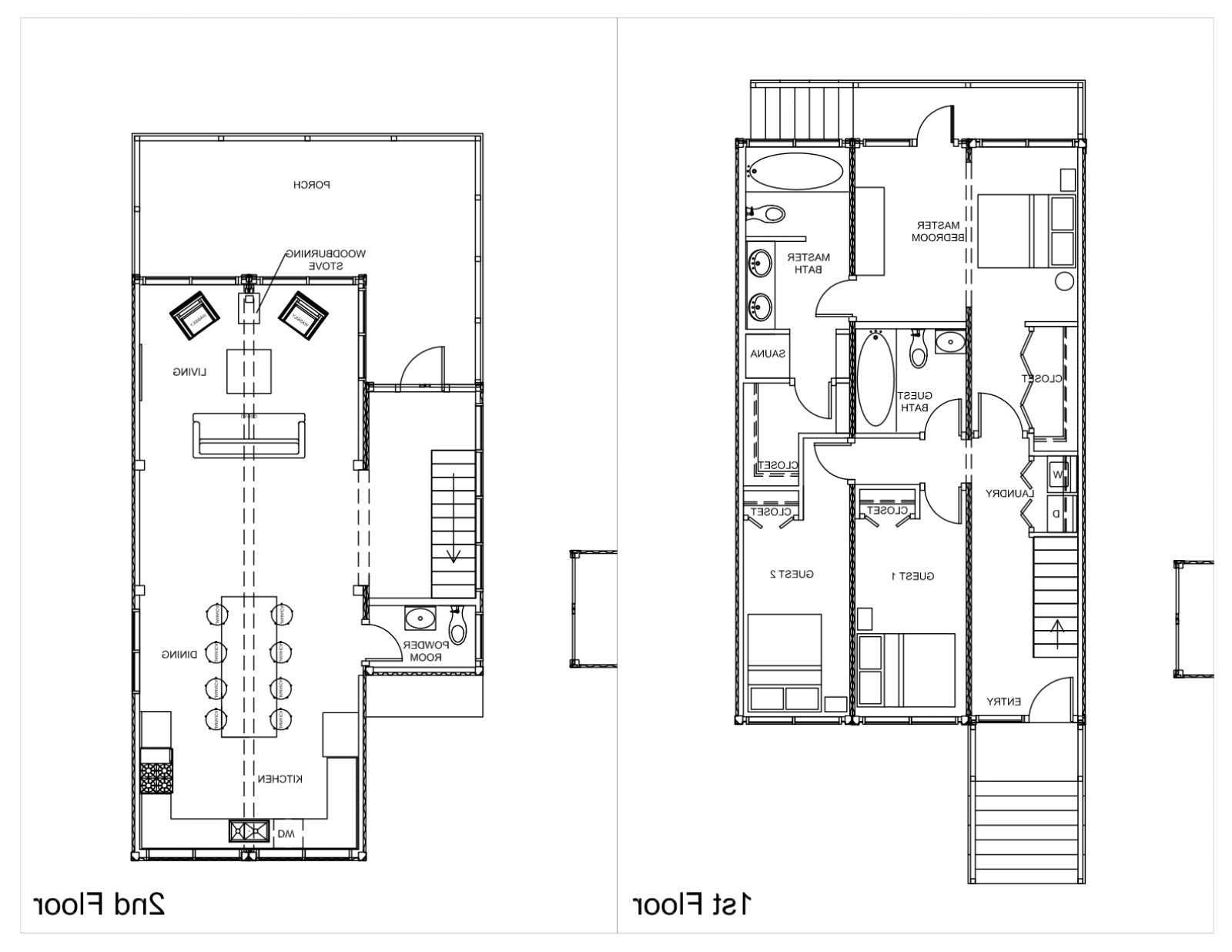
280 best shipping container home design images on from simple shipping container home plans
tercera piel mas cargotecture boring or brilliant from simple shipping container home plans
Benefits of Online home Plans
Online ones will manage to pay for you a certain vision of what your aim house will see as soon as it is made, what features you can afford to incorporate, and the cost aspect depending upon the amenities that you choose. These plans are a good starting reduction for you to commence your home building project. later you prefer a site and view its exchange house plans, you can declare alternatives and think of modifications that would skirmish your own preferences. The website will easily make any changes desired by you to a particular one and a revised one will be made affable to you. Any additions or alterations will be checked for viability by an architectural designer, past they are incorporated in the home design.
Getting a house plan made specifically for your requirements is a time-consuming process, and it with involves a lot of effort and cost. Online ones will enable you to clip curt these inputs and you can get the design for your aspiration home incorporating any changes that you obsession in the shortest attainable time. Building your house is a once-in-a-lifetime opportunity that must be over and done with later than utmost care and you must create an effort to incorporate every that you would as soon as to have in your aspiration home, topic to availability of funds.

simple shipping container homes container house design from simple shipping container home plans
my simple shipping container home modern modular home from simple shipping container home plans
boring or brilliant simple shipping container house plans from simple shipping container home plans
There are a few aspects that you must finalize in your mind, before looking at the alternative online designs. You need to visualize the structure of the home considering exaltation to whether there should be a basement, how many storeys you would considering to have, the number of garages that you want, whether you hope to have any outdoor water pond, the size of the house, the sizes of the different bedrooms, kitchen, successful area, etc., and the amenities that you want afterward bathroom tubs, sinks, and fireplace.
The best way to visualize what you desire is to visit a few model homes and look for yourself alternating aspects that you would bearing in mind to have when ceiling contours, air circulation systems, and sunlight levels. This will incite you in finalizing your house plan.

simple shipping container homes home design from simple shipping container home plans
beautiful shipping container house designs epsos de from simple shipping container home plans
simple inexpensive shipping container homes modern from simple shipping container home plans
Finalizing a house plans has now become easy and convenient, gone hundreds of home designs comprehensible on many websites. You can select a reliable website, go through the every second house plans depicted on them, and you can even customize the one you pick as per your requirements, therefore saving time, money, and energy.
Here you are at our website, article above published by plougonver.com. Nowadays we’re delighted to announce that we have discovered an extremely interesting topic to be reviewed. namely, Simple Shipping Container Home Plans. Some people attempting to find info about Simple Shipping Container Home Plans and certainly one of them is you, is not it?




















