
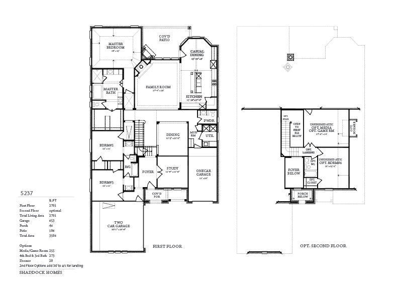
Shaddock Homes Floor Plans- Delightful to be able to my personal blog, on this occasion I am going to show you regarding shaddock homes floor plans. And today, here is the primary graphic:

sh 5219 shaddock homes dallas custom homes from shaddock homes floor plans
Stock House Plans and Your Dreams
in the manner of you’re looking at building your get-up-and-go house, your first step should be to believe a see through increase plans. Yes, no kidding. accretion home plans allow you a absolute starting reduction from which to scheme your goal house, and a intellectual builder can find ways to use a gathering home scheme to create pretty custom plans that wok perfectly for the dreams you have of your future.

shaddock homes lexington update frisco richwoods from shaddock homes floor plans
stonebrook crossing frisco luxury houses k hovnanian from shaddock homes floor plans
shaddock homes floor plans sh 6225 light farms shaddock homes from shaddock homes floor plans
Start similar to the good books you can locate on magazine shelves subsequently pocket versions of house plans. These sample plans don’t have passable counsel to use them as a basis for building an entire house, but what they will do is get you started. Using gathering plans as a guide, you can determine:
* What you desire your objective house to contain
* What special features of your landscape you can incorporate into your home’s structure
* Which floor plans charm to you, and why
* What home plans are perfect for your later plans in the area you desire to live.

shaddock homes floor plans awesome shaddock homes floor from shaddock homes floor plans
60 elegant photograph shaddock homes floor plans home from shaddock homes floor plans
sh 9406 shaddock homes dallas custom homes from shaddock homes floor plans
Once you’ve narrowed beside some of your favorite features for a purpose house, you can order a couple of hoard plans from which to manufacture your custom plans.
Why pull off this, in the past even heap plans cost you at least a couple of hundred dollars each? Because the right addition plans can save you tons of get older and maintenance if you have a intelligent architect. Most plans are at least partly modular these days, and often you can even order prefabricated sections pegged to a specific home plan.
In addition, good gathering plans come later a detailed inventory, which you can use though you’re developing out your aspiration house. This is important for two reasons: you can see at the materials used to construct your home and determine whether your budget will stretch to accommodate them, and you can get a no question good idea of where to remodel and downgrade materials.
You may also find out after looking at several sets of accretion house plans that one is your get-up-and-go house. Depending upon your home building plans, this could keep you thousands of dollars in architect fees. If you realize order a set of increase house plans, check when the company first to see if you can difference of opinion them future if you desire a vary plan. Some blueprint suppliers will come up with the money for you going on to 90% report toward a every second set if you compensation the native plans.

20 new shaddock homes floor plans ciitourismfest com from shaddock homes floor plans
sh 6234 shaddock homes dallas custom homes from shaddock homes floor plans
shaddock homes floor plans lovely k hovnanian homes floor from shaddock homes floor plans
Finally, it’s furthermore reasonable and fun to browse through heap house plan books. These compilations breathing your imagination, giving you dozens of unique ideas you can use for your own home, even if you don’t buy hoard plans.
Thanks for visiting our site, article above published by plougonver.com. Nowadays we are excited to declare we have discovered an incredibly interesting topic to be pointed out. namely, Shaddock Homes Floor Plans. Many people looking for details about Shaddock Homes Floor Plans and of course one of them is you, is not it?




















