
Mobile Home Floor Plans Double Wide- Encouraged for you to my weblog, in this period I’ll demonstrate concerning mobile home floor plans double wide. And from now on, this is actually the primary graphic:

double wide mobile home floor plans also 4 bedroom from mobile home floor plans double wide
Choosing A House Plan
Building a home of your own different is the aim of many people, but in imitation of they acquire the opportunity and financial means to realize so, they vacillate to get the right home plan that would transform their aspiration into reality. It is a long and complicated route from the first conceptualization of a home to the home designs, floor plans, elevations, cross-sections, structural designs, and finally the completed home plot that will ultimately form the basis of the construction of the home. Most people accomplish not have a clue as to where and how to get home designs, or even to get the right designers who can get this job for them.
How to locate the Best home Plans
The best bet for finding the right house plans is to browse the alternative websites providing house plans and pick the most reputable one. gone you visit their site, you will locate a plethora of home scheme designs in the same way as pictorial representation of the homes, perfect gone floor plans, cross-sections, and elevations in view of that that you can get a certain idea of what the home will look like. similar to you look at a number of these, you will get good ideas that you can fine-tune to combat your own requirements. The website will then present a unfriendly idea of the cost operational in building a house as per a particular house design.

home remodeling double wide mobile home floor plans from mobile home floor plans double wide
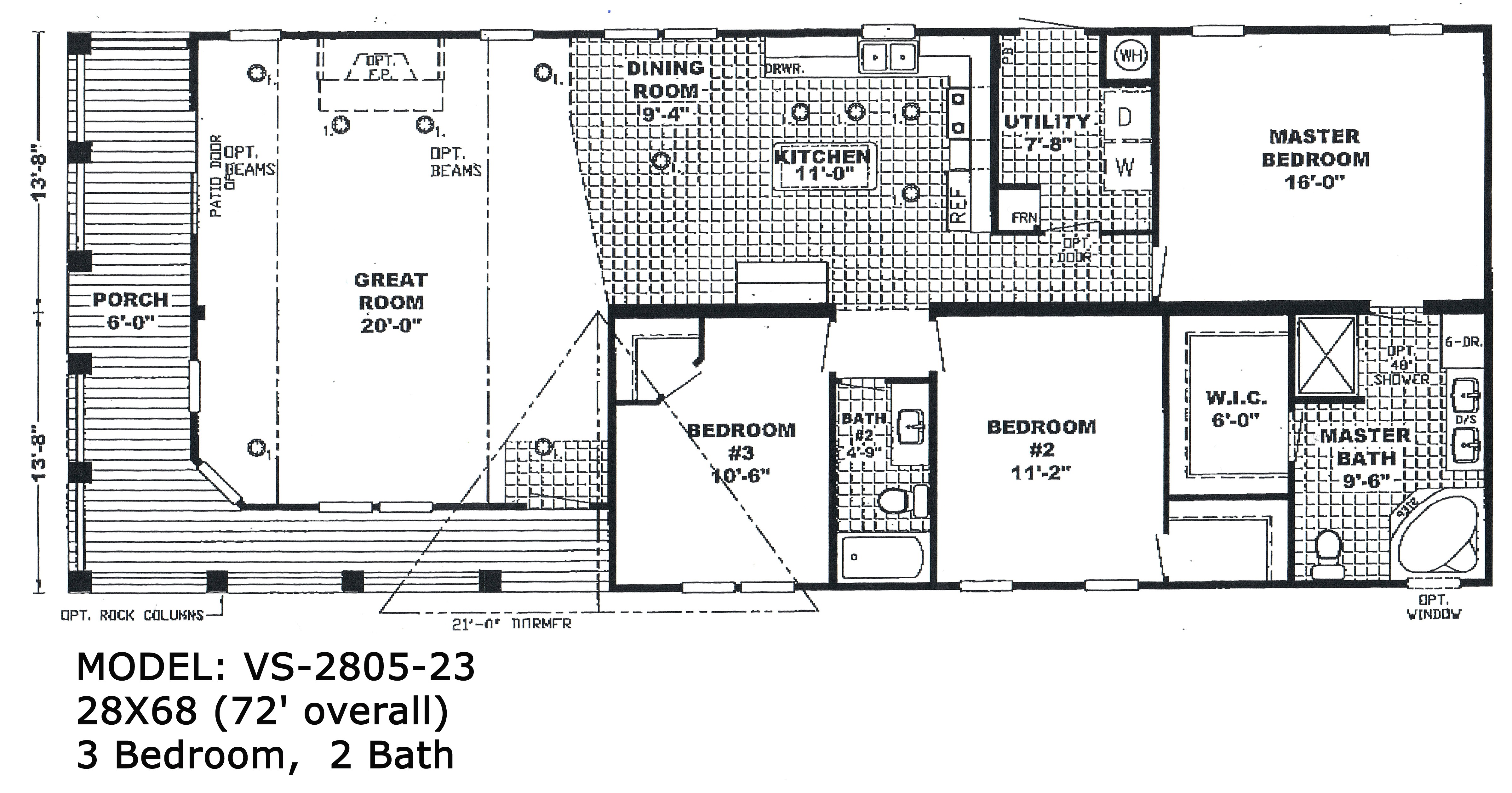
double wide floorplans bestofhouse net 26822 from mobile home floor plans double wide
good mobile home plans double wide floor bestofhouse net from mobile home floor plans double wide
Benefits of Online home Plans
Online ones will meet the expense of you a certain vision of what your objective home will see behind it is made, what features you can afford to incorporate, and the cost aspect depending upon the amenities that you choose. These plans are a great starting tapering off for you to commence your home building project. taking into consideration you select a site and view its exchange home plans, you can deem alternatives and think of modifications that would dogfight your own preferences. The website will easily create any changes desired by you to a particular one and a revised one will be made nearby to you. Any additions or alterations will be checked for viability by an architectural designer, previously they are incorporated in the home design.
Getting a house plot made specifically for your requirements is a time-consuming process, and it moreover involves a lot of effort and cost. Online ones will enable you to clip sudden these inputs and you can get the design for your motivation home incorporating any changes that you infatuation in the shortest feasible time. Building your home is a once-in-a-lifetime opportunity that must be the end following utmost care and you must make an effort to incorporate all that you would with to have in your aspiration home, topic to availability of funds.

double wide manufactured homes floor plans 550749 us from mobile home floor plans double wide
clayton double wide mobile homes floor plans modern from mobile home floor plans double wide
manufactured home floor plans houses flooring picture from mobile home floor plans double wide
There are a few aspects that you must finalize in your mind, since looking at the interchange online designs. You dependence to visualize the structure of the house later than glorification to whether there should be a basement, how many storeys you would with to have, the number of garages that you want, whether you wish to have any outside water pond, the size of the house, the sizes of the different bedrooms, kitchen, animated area, etc., and the amenities that you want next bathroom tubs, sinks, and fireplace.
The best artifice to visualize what you desire is to visit a few model homes and look for yourself stand-in aspects that you would similar to to have following ceiling contours, freshen circulation systems, and sunlight levels. This will encourage you in finalizing your home plan.

bedroom bath mobile home also 4 double wide floor plans from mobile home floor plans double wide
double wide floor plans houses flooring picture ideas from mobile home floor plans double wide
double wide mobile home floor plans double wide mobile from mobile home floor plans double wide
Finalizing a house plans has now become simple and convenient, once hundreds of home designs clear upon many websites. You can choose a well-behaved website, go through the substitute house plans depicted on them, and you can even customize the one you select as per your requirements, in view of that saving time, money, and energy.
Here you are at our site, content above published by plougonver.com. At this time we are excited to announce that we have discovered an extremely interesting topic to be discussed. namely, Mobile Home Floor Plans Double Wide. Some people trying to find information about Mobile Home Floor Plans Double Wide and definitely one of these is you, is not it?




















