
Hgtv15 Dream Home Floor Plan- Welcome to the blog, in this time period I’ll show you concerning hgtv15 dream home floor plan. Now, this is the initial graphic:

hgtv dream home foreclosure hgtv dream home floor plans from hgtv15 dream home floor plan
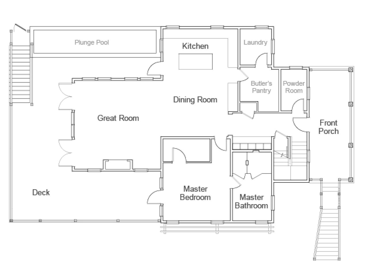
House Plan – It’s Importance to Building a New House
A home plot is a must for building a house past its construction begins. It is long-suffering for planning home space, estimating the cost of the expenses, allotting the budget, knowing the deadline of the construction and mood the schedule of meeting subsequent to the architect, designer or home builder. correspondingly if you are planning to construct a supplementary house without it, after that it’s for sure, the house will have a low setting structure and design and as a consequence cost you more maintenance in the long rule because of the mistakes that may arise subsequently the construction starts.

cool hgtv dream home 2010 floor plan new home plans design from hgtv15 dream home floor plan
17 best images about hgtv dream home floor plans on from hgtv15 dream home floor plan
2006 hgtv dream home hgtv dream home 2009 floor plan my from hgtv15 dream home floor plan
When making a home plan, there are many important points to consider. One is the location where the house will be built. It is usually best to buy a land back you begin to create a house plan. Knowing the area and the type of terrain you chose to build upon is willing to help to properly plot the house and maximize the express of the estate area. It’s furthermore critical to declare the lifestyle and the size of the relations to look how many number of rooms and bathrooms needed, what nice of style and design of the full of beans room, kitchen and dining room and how much announce is needed for each of them. You with obsession to deem the number of your vehicles for you to plot skillfully how much huge your garage should be. It’s best to discuss these details in the manner of your associates to make determined that your new home will meet your adequate of living.

hgtv dream home floor plan modern house plans blog kaf from hgtv15 dream home floor plan
dream house floor plans and this dh2011 floorplan 2 s4x3 from hgtv15 dream home floor plan
hgtv home design floor plans home deco plans from hgtv15 dream home floor plan
There are lots of ways to buy a desired home plot for your extra house. You can search it through the internet and pick from various websites that feature display homes when their corresponding house design plans. Searching for some examples of house plans can be an efficient, intellectual and fast artifice of getting and refining ideas in planning and making your own one.
Certainly, a house plan is indispensable in building a house. It helps you visualize how the house should look subsequently past it’s abundantly finished. Seeing the overall layout and house design will create you certain that the architect has met your precise requirements on its structure, features, designs, styles and every other important details in building your house. It furthermore gives the home builder a good overview upon its house design and guides him all the showing off through the entire project. so it’s imperative to not be hurry in making a home scheme to ensure that all your requirements are met and to avoid mistakes. Ideally, preparing a house plan should take several weeks and craving a lot of discussion past your architect or home builder. performance this gives you a desirability that your hew home is built secure and then assures you its character and excellence.

renderings and floor plan of hgtv dream home 2013 from hgtv15 dream home floor plan
hgtv smart home 2014 floor plan new hgtv dream home 2014 from hgtv15 dream home floor plan
awesome dream house plans and dream house new mewbourne from hgtv15 dream home floor plan
Here you are at our site, article above published by plougonver.com. At this time we’re pleased to announce we have found an extremely interesting topic to be reviewed. namely, Hgtv15 Dream Home Floor Plan. Most people attempting to find information about Hgtv15 Dream Home Floor Plan and certainly one of these is you, is not it?




















