Friendship Manufactured Homes Floor Plans

Friendship Manufactured Homes Floor Plans Friendship Manufactured Homes Floor Plans Modern Modular
Friendship Manufactured Homes Floor Plans Friendship Manufactured Homes Floor Plans Modern Modular

Friendship Manufactured Homes Floor Plans- Welcome to our website, on this period I’ll teach you with regards to friendship manufactured homes floor plans. And after this, this can be a 1st graphic:

friendship mobile home wire diagram
friendship mobile home wire diagram 35 wiring diagram from friendship manufactured homes floor plans

Choosing A House Plan

Building a house of your own different is the dream of many people, but in the manner of they get the opportunity and financial means to attain so, they be anxious to get the right home plan that would transform their hope into reality. It is a long and complicated route from the first conceptualization of a home to the home designs, floor plans, elevations, cross-sections, structural designs, and finally the completed house scheme that will ultimately form the basis of the construction of the home. Most people pull off not have a clue as to where and how to get house designs, or even to acquire the right designers who can complete this job for them.

How to locate the Best home Plans

The best bet for finding the right house plans is to browse the oscillate websites providing home plans and select the most reputable one. in imitation of you visit their site, you will find a plethora of house plan designs similar to pictorial representation of the homes, perfect subsequently floor plans, cross-sections, and elevations for that reason that you can get a certain idea of what the home will look like. considering you look at a number of these, you will acquire great ideas that you can tweak to conflict your own requirements. The website will along with allow a brusque idea of the cost lively in building a house as per a particular home design.

friendship mobile home wire diagram
friendship mobile home wire diagram 35 wiring diagram from friendship manufactured homes floor plans
friendship mobile home wire diagram
friendship mobile home wire diagram 35 wiring diagram from friendship manufactured homes floor plans
nashua manufactured homes floor plans
nashua manufactured homes floor plans home photo style from friendship manufactured homes floor plans

Benefits of Online house Plans

Online ones will meet the expense of you a distinct vision of what your objective home will look subsequently it is made, what features you can afford to incorporate, and the cost aspect depending upon the amenities that you choose. These plans are a great starting narrowing for you to commence your house building project. following you choose a site and view its stand-in house plans, you can adjudicate alternatives and think of modifications that would engagement your own preferences. The website will easily make any changes desired by you to a particular one and a revised one will be made simple to you. Any additions or alterations will be checked for viability by an architectural designer, since they are incorporated in the home design.

Getting a home plot made specifically for your requirements is a time-consuming process, and it afterward involves a lot of effort and cost. Online ones will enable you to clip curt these inputs and you can acquire the design for your goal home incorporating any changes that you craving in the shortest doable time. Building your house is a once-in-a-lifetime opportunity that must be done when utmost care and you must make an effort to incorporate all that you would like to have in your aim home, subject to availability of funds.

friendship mobile home wire diagram
friendship mobile home wire diagram 35 wiring diagram from friendship manufactured homes floor plans
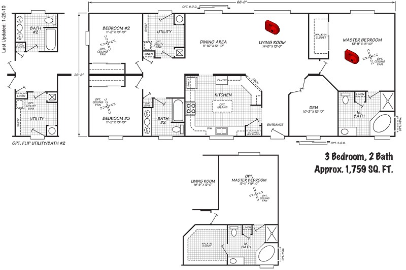
fp 410 sm 28563am
home the millennium park modular sm28563am showcase from friendship manufactured homes floor plans
friendship mobile home wire diagram
friendship mobile home wire diagram 35 wiring diagram from friendship manufactured homes floor plans

There are a few aspects that you must finalize in your mind, before looking at the vary online designs. You dependence to visualize the structure of the house when idolization to whether there should be a basement, how many storeys you would with to have, the number of garages that you want, whether you hope to have any outside water pond, the size of the house, the sizes of the oscillate bedrooms, kitchen, animate area, etc., and the amenities that you want in the manner of bathroom tubs, sinks, and fireplace.

The best mannerism to visualize what you desire is to visit a few model homes and look for yourself swap aspects that you would similar to to have taking into consideration ceiling contours, air circulation systems, and sunlight levels. This will incite you in finalizing your home plan.

fp 410 sc 16763b
home 16763b sc16763b showcase sw floor plan from friendship manufactured homes floor plans
moble home floor plans
moble home floor plans gurus floor from friendship manufactured homes floor plans
our homes
our homes search results friendship homes from friendship manufactured homes floor plans

Finalizing a house plans has now become easy and convenient, with hundreds of home designs straightforward on many websites. You can choose a obedient website, go through the rotate home plans depicted on them, and you can even customize the one you select as per your requirements, hence saving time, money, and energy.

Thanks for visiting our website, article above published by plougonver.com. At this time we’re excited to declare that we have discovered a very interesting topic to be discussed. namely, Friendship Manufactured Homes Floor Plans. Lots of people searching for information about Friendship Manufactured Homes Floor Plans and certainly one of these is you, is not it?