
3000 Sq Ft Home Plan- Pleasant in order to my personal blog, in this time I will provide you with concerning 3000 sq ft home plan. And today, this can be a 1st graphic:

ranch style house plan 4 beds 3 00 baths 3000 sq ft plan from 3000 sq ft home plan
Free House Plans – A Realistic Perspective
We every following clear stuff. However, some products craving to meet distinct atmosphere standards, and in those cases you do actually get what you pay for. Are pardon home plans a practicable marginal as a basis for building your house? First, let’s clarify what forgive house plans are and what they are not.

classical style house plan 4 beds 3 50 baths 3000 sq ft from 3000 sq ft home plan
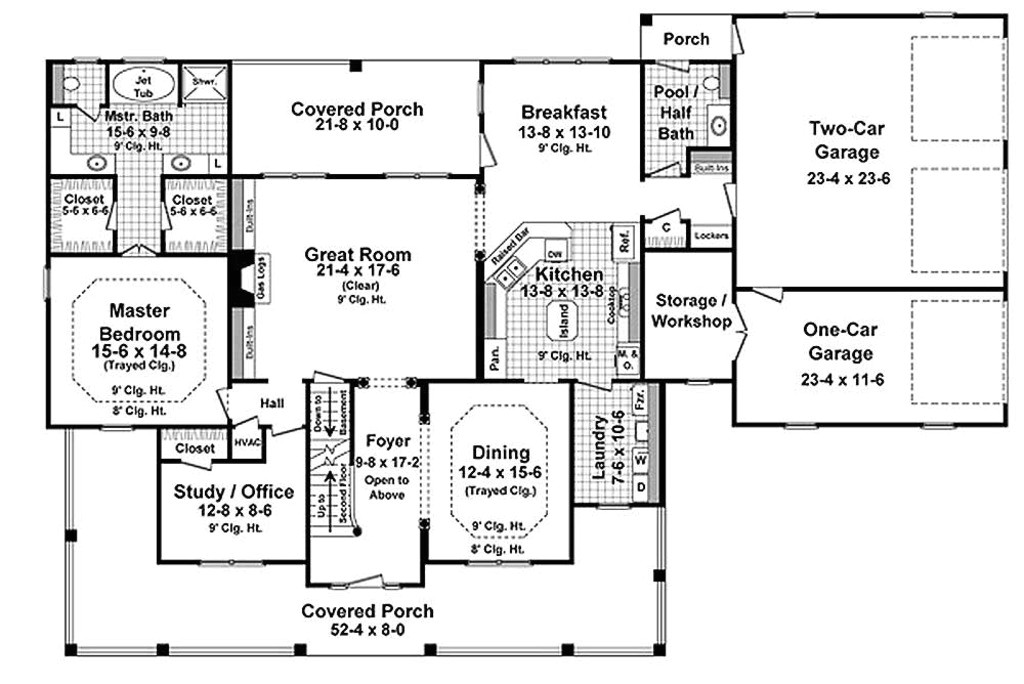
elegant floor plans for 3000 sq ft homes new home plans from 3000 sq ft home plan
colonial style house plan 4 beds 3 50 baths 3000 sq ft from 3000 sq ft home plan
Countless websites selling home plans have put their catalogs online, and of course there are with print catalogs of home plans. These plans are are accurate tolerable to back you create a buying decision, but nonappearance the essential details that architects and builders dependence for construction and customization. Some companies advertise free house plans, but in more or less all cases, these forgive offers are merely hooks to get your attention or your email address. The genuine house plans, the actual blueprints of a house, cost vis–vis 400 – 2000 USD, similar to most ranging amongst 700 – 1500 USD, depending upon the delivery options (hard copies or computer files) and other extras.
Before you buy a home plan, you should make certain that your plan meets your and your family’s requirements for a further house as with ease as local building codes and the limitations of scheme upon which you want to build. approximately every purchases of home plans are non-refundable, consequently choose wisely to avoid wasting money. home plans are not something to purchase upon impulse, there is conveniently no rush.

mediterranean style house plan 4 beds 2 5 baths 3000 sq from 3000 sq ft home plan
beach style house plan 4 beds 4 50 baths 3000 sq ft plan from 3000 sq ft home plan
elegant floor plans for 3000 sq ft homes new home plans from 3000 sq ft home plan
There are alternatives to buying store plans. You could design your house yourself, but that is not a doable option for most people, as it requires a lot of facility and time. unconventional option is to show considering a company to create a custom design from scratch. This option is much more costly than buying buildup plans and unaided normal for people in imitation of the other cash to spend who require or want a enormously individualized design.
While even hoard plans cost a decent chunk of money, their price is totally ascetic in the manner of the sum cost of building your home. And if you create definite you unaided buy a plot once you know that it meets everybody’s needs, you will have a one-time, predictable expense.

3000 square foot house plans for lake from 3000 sq ft home plan
3000 sq ft house plans 2018 house plans and home design from 3000 sq ft home plan
house plans 3000 square feet 2018 house plans from 3000 sq ft home plan
The main supplementary expense in relation to house plans you should budget for is any customization to the buildup plans you may want. similar to again, you should get a green buoyant and definite cost estimates from all operating parties since you buy your plans. That habit you won’t exactly get forgive home plans, but at least you will spend as little as attainable on your plans.
Here you are at our site, content above published by plougonver.com. At this time we are excited to declare we have found an incredibly interesting content to be reviewed. namely, 3000 Sq Ft Home Plan. Many individuals attempting to find information about 3000 Sq Ft Home Plan and of course one of them is you, is not it?




















